AMO House_Madrid, Spain

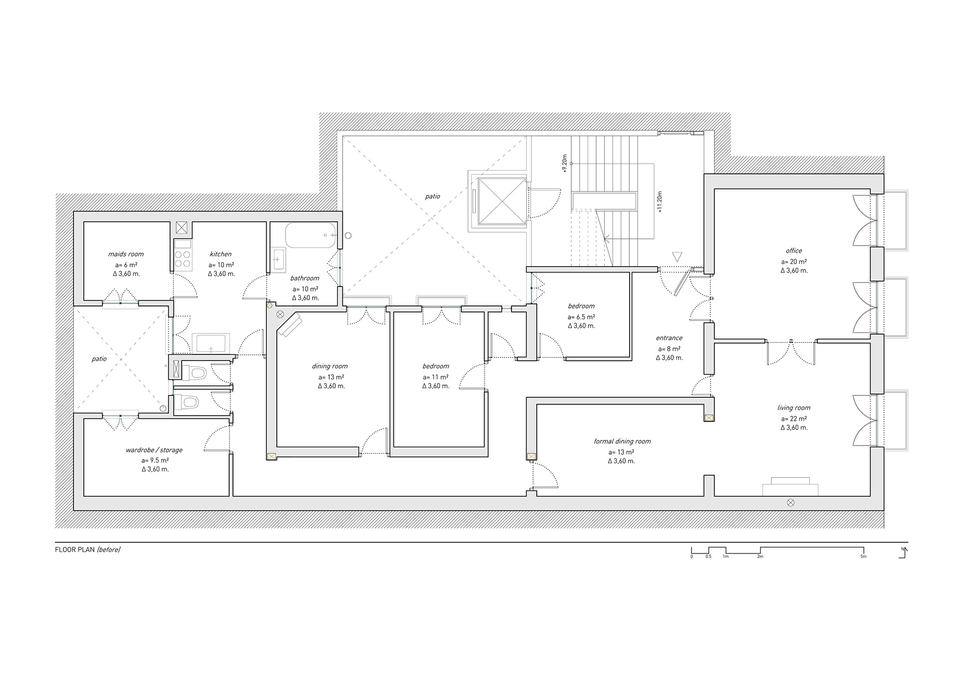
Before the renovation, the distribution followed the style of a typical nineteen-century stately apartment, as are commonly found in the central Madrid. The home, divided between the service area and the served quarters, was excessively compartmentalized, thus lacking in appropriate light and ventilation.
Adapting to the client's needs, we opted for a 3-bedroom, 3-bathroom home with open living areas, redistributing the space to open them unto light and gaining both in usable surface and in comfort.

* En colaboración con / In collaboration with:
- Ana Olivar (diseñadora/designer), Pablo Álvarez de Lara (arquitecto/architect), Iker López Consuegra (fotógrafo/photographer)
antes / before
antes / before
después / after
después / after
Back to Top